Avis sur installation goutte à goutte

Ce forum est dédié à toutes vos questions relatives à l'arrosage.
Matou31
Graine de timide
Messages : 6
Inscription : mer. 12 avr. 2017 22:51
Région : Midi-Pyrénées

Avis sur installation goutte à goutte

Message par Matou31 »

Bonjour,

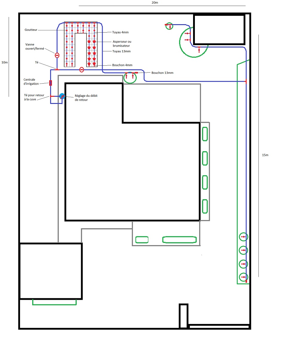
Je vais installer le goutte à goutte dans mon potager/jardin et j'aimerais avoir votre avis sur l'installation que je prévois (voir plan joint).

Mon potager est de type 'potager en carré' mais en forme de U! Il comprend 40 carrés de 40cm de côté avec une allée au milieu pour circuler. Le goutte à goutte doit fournir de l'eau à ces 40 carrés ainsi qu'à certaines plantes/massifs du jardin.

Ma pompe est au fond d'un récupérateur d'eau de pluie. Suite à cette pompe, je vais installer un Té permettant un retour de l'eau en trop dans le récupérateur (pression en sortie de pompe trop forte pour du goutte à goutte). Ensuite, je vais placer une centrale d'irrigation pour filtrer l'eau et avoir un débit fixe. 2 vannes permettront de choisir l'arrosage du potager, des plantes du jardin ou des 2.

Avez-vous des remarques sur mon installation?
Quelle marque de gouteurs choisir? Quitte à y mettre le prix, je préfère prendre de la bonne qualité.
Que me conseillez-vous en asperseurs/brumisateurs pour arroser à peu près uniformément mes carrés de 40cm de côté?

Merci d'avance.
Pièces jointes
Plan jardin.jpg
Avatar de l’utilisateur
jeanot77
Maitre des bosquets
Messages : 5591
Inscription : lun. 05 déc. 2005 1:15
Région : Languedoc Roussillon
Localisation : saint genis des fontaines
Contact :

Re: Avis sur installation goutte à goutte

Message par jeanot77 »

bonjour, je ne réponds pas à ta question, mais ton récupérateur d'eau il a quelle contenance?
ne fais pas aux autres ce que tu ne voudrais pas que l'on te fasse.
Matou31
Graine de timide
Messages : 6
Inscription : mer. 12 avr. 2017 22:51
Région : Midi-Pyrénées

Re: Avis sur installation goutte à goutte

Message par Matou31 »

Bonjour, actuellement je n'ai qu'une réserve de 100l que je vais remplacer par une autre d'environ 500l. Ce sera peut-être insuffisant mais le but est d'avoir un système autonome pour quand je ne suis pas chez moi.
Avatar de l’utilisateur
jeanot77
Maitre des bosquets
Messages : 5591
Inscription : lun. 05 déc. 2005 1:15
Région : Languedoc Roussillon
Localisation : saint genis des fontaines
Contact :

Re: Avis sur installation goutte à goutte

Message par jeanot77 »

500 litres, ça va te dépanner
100 litres, ça ne sera d'aucune utilité pour ton installation (aprés, ce n'est que mon avis)
ne fais pas aux autres ce que tu ne voudrais pas que l'on te fasse.
Matou31
Graine de timide
Messages : 6
Inscription : mer. 12 avr. 2017 22:51
Région : Midi-Pyrénées

Re: Avis sur installation goutte à goutte

Message par Matou31 »

Oui le but est de pouvoir avoir un arrosage quand je suis absent, dans mon cas 500l suffiront.
Je voulais plutôt des avis sur le reste de l'installation goutte à goutte.
Avatar de l’utilisateur
jeanot77
Maitre des bosquets
Messages : 5591
Inscription : lun. 05 déc. 2005 1:15
Région : Languedoc Roussillon
Localisation : saint genis des fontaines
Contact :

Re: Avis sur installation goutte à goutte

Message par jeanot77 »

pour le potager, je pense que les goutteurs, ça n'ira pas (surtout un au milieu du carré)
j'utiliserais plutôt des micro asperseurs plaçés sur le pourtour extérieur (ça devrait le faire avec trois)
ne fais pas aux autres ce que tu ne voudrais pas que l'on te fasse.
Avatar de l’utilisateur
jeanot77
Maitre des bosquets
Messages : 5591
Inscription : lun. 05 déc. 2005 1:15
Région : Languedoc Roussillon
Localisation : saint genis des fontaines
Contact :

Re: Avis sur installation goutte à goutte

Message par jeanot77 »

j'utilise ces deux modèles, je remplace le 1er par le 2ieme :wink:
Pièces jointes
IMG_20170425_130057 (Small).jpg
IMG_20170425_125937 (Small).jpg
ne fais pas aux autres ce que tu ne voudrais pas que l'on te fasse.
Répondre

Revenir à « À l'arrosage »