Besoin d'aide pour planifier le potager - débutant
Besoin d'aide pour planifier le potager - débutant
Bonjour à tous,
Je suis très débutant dans le potager (ayant vécu en appartement toute ma vie), et j'ai désigné une surface dans mon jardin pour faire un potager (40-50m² à vue de nez).
J'avais déjà essayé l'année dernière et ce fut une catastrophe (il a plu toute la saison, j'ai perdu presque la moitié au mildiou, un bon 40% est décédé dans la semaine suivant la mise en terre, au final je n'ai eu que de l'ail, 4 plans de courgettes, 1 plan de concombres, 1 plan de melons et des courges diverses qui ont marché, tout le reste mort).
Cette année, je n'ai pas envie de revivre ma déception de l'année dernière, et je voulais planifier en avance un bon potager avec des plantes faciles, mais intéressantes (genre pas la tomate sans goût du supermarché, sinon ça vaut pas le coup). Idéalement, des variétés gustatives (premier critère) et originales (deuxième critère), mais dans tous les cas des plants que même moi je ne peux pas rater…
J'ai à ma disposition une serre non chauffée sans sol de petite taille (je dirais 2m x 1m à vue de nez, avec 2 niveaux d'étagères de chaque côté) et une micro-serre pour semis (pour mettre genre 20 godets).
J'habite au sud de Paris, le long de l'Yvette, à l'entrée de la Vallée de Chevreuse (anciennes terres maraîchères apparemment). La terre est plutôt lourde, un peu argileuse (je pense que la terre n'est pas assez bonne pour des légumes racines, mais je peux me tromper !).
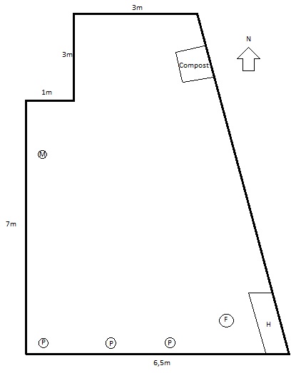
Ci-dessous le plan du potager : M = mirabellier
P = poirier (il y en a 3)
F = figuier
H = herbes diverses (menthe, thym, persil etc.)
J'avais commencé à regarder sur le catalogue de la Ferme de Sainte-Marthe, mais ce catalogue est gigantesque et illisible pour un débutant comme moi, je ne sais même pas par où commencer. Pour l'instant, j'ai juste dégagé la zone et passé le motoculteur (je sais qu'idéalement il faut mettre de l'engrais vert plutôt, mais j'ai raté la fenêtre de semis des engrais verts...).
J'ai un grand congélateur coffre, donc pas peur des excès de production (au contraire, ça m'en fera un peu pour l'hiver aussi).
Idéalement, j'aimerais des tomates, des courgettes, des melons, des courges (pas trop, genre 2, 3 plans max, l'année dernière ça a été l'invasion, j'avais 6 plants, ils prenaient au bas mot 30m²), des concombres, des haricots, des légumineuses (lesquelles marchent à mes latitudes ?), des oignons, de l'ail, et s'il reste de la place, pourquoi pas des légumes que je ne connais pas encore et/ou que vous me conseilleriez
L'année dernière, j'avais mis de l'ail le long du mur sud et juste au-dessus des plants de tomates, avec du basilic entre les plants. Les basilics avaient très mauvais goût au final (un peu d'oïdium dessus je dirais) et toutes mes tomates sont mortes au mildiou (dommage, elles étaient bien parties...). Rangées horizontales (est-ouest), dans cet ordre du sud au nord : courgettes, concombre, aubergines, melons, haricots, courges. Je voulais aussi mettre des betteraves, légumineuses et pastèques, les semis ont raté.
Avez-vous des idées pour moi pour organiser ce potager cette année avec des plants qui soient difficiles de rater, mais des légumes intéressants ?
Un grand merci !
Je suis très débutant dans le potager (ayant vécu en appartement toute ma vie), et j'ai désigné une surface dans mon jardin pour faire un potager (40-50m² à vue de nez).
J'avais déjà essayé l'année dernière et ce fut une catastrophe (il a plu toute la saison, j'ai perdu presque la moitié au mildiou, un bon 40% est décédé dans la semaine suivant la mise en terre, au final je n'ai eu que de l'ail, 4 plans de courgettes, 1 plan de concombres, 1 plan de melons et des courges diverses qui ont marché, tout le reste mort).
Cette année, je n'ai pas envie de revivre ma déception de l'année dernière, et je voulais planifier en avance un bon potager avec des plantes faciles, mais intéressantes (genre pas la tomate sans goût du supermarché, sinon ça vaut pas le coup). Idéalement, des variétés gustatives (premier critère) et originales (deuxième critère), mais dans tous les cas des plants que même moi je ne peux pas rater…
J'ai à ma disposition une serre non chauffée sans sol de petite taille (je dirais 2m x 1m à vue de nez, avec 2 niveaux d'étagères de chaque côté) et une micro-serre pour semis (pour mettre genre 20 godets).
J'habite au sud de Paris, le long de l'Yvette, à l'entrée de la Vallée de Chevreuse (anciennes terres maraîchères apparemment). La terre est plutôt lourde, un peu argileuse (je pense que la terre n'est pas assez bonne pour des légumes racines, mais je peux me tromper !).
Ci-dessous le plan du potager : M = mirabellier
P = poirier (il y en a 3)
F = figuier
H = herbes diverses (menthe, thym, persil etc.)
J'avais commencé à regarder sur le catalogue de la Ferme de Sainte-Marthe, mais ce catalogue est gigantesque et illisible pour un débutant comme moi, je ne sais même pas par où commencer. Pour l'instant, j'ai juste dégagé la zone et passé le motoculteur (je sais qu'idéalement il faut mettre de l'engrais vert plutôt, mais j'ai raté la fenêtre de semis des engrais verts...).
J'ai un grand congélateur coffre, donc pas peur des excès de production (au contraire, ça m'en fera un peu pour l'hiver aussi).
Idéalement, j'aimerais des tomates, des courgettes, des melons, des courges (pas trop, genre 2, 3 plans max, l'année dernière ça a été l'invasion, j'avais 6 plants, ils prenaient au bas mot 30m²), des concombres, des haricots, des légumineuses (lesquelles marchent à mes latitudes ?), des oignons, de l'ail, et s'il reste de la place, pourquoi pas des légumes que je ne connais pas encore et/ou que vous me conseilleriez
L'année dernière, j'avais mis de l'ail le long du mur sud et juste au-dessus des plants de tomates, avec du basilic entre les plants. Les basilics avaient très mauvais goût au final (un peu d'oïdium dessus je dirais) et toutes mes tomates sont mortes au mildiou (dommage, elles étaient bien parties...). Rangées horizontales (est-ouest), dans cet ordre du sud au nord : courgettes, concombre, aubergines, melons, haricots, courges. Je voulais aussi mettre des betteraves, légumineuses et pastèques, les semis ont raté.
Avez-vous des idées pour moi pour organiser ce potager cette année avec des plants qui soient difficiles de rater, mais des légumes intéressants ?
Un grand merci !
-
lejardinero
- Liseron du clavier
- Messages : 2376
- Inscription : ven. 28 sept. 2007 8:03
- Région : Europe du Sud
- Localisation : Portugal
Re: Besoin d'aide pour planifier le potager - débutant
Vouloir faire du tropical pour ses debuts genre tomate ,melons haricots et autres c'est pas top .
Le légume local c'est le chou ,les bettes ,les carottes ,la salade ,le poireau,les feves
Faites vos semis graine par graine dans votre serre.
Trouvez du compost là où les communes transforment les dechets verts
Mettez la dose genre 3 doigts .
Incorporez en grelinettant
Mi avril vous repiquez vos plants
Mi mai vous repiquez vos plantes tropicales, après les saints de glace.
C'C'est souvent plus la terre que la variété qui fait le goût ,donc le plant du commerce peut aller.
Sinon la noire de Crimée en tomate est plutot bonne,la harzenfeuer aussi.
Si votre terrain est trop humide ,cultivez sur billon ,c'est radical .
Et protegez avec du voile de forçage, ça aide .
Vos semis directs furent ravagés par les limaces la nuit .
Pas besoin de s' epuiser à faire tout mais faire bien
Le légume local c'est le chou ,les bettes ,les carottes ,la salade ,le poireau,les feves
Faites vos semis graine par graine dans votre serre.
Trouvez du compost là où les communes transforment les dechets verts
Mettez la dose genre 3 doigts .
Incorporez en grelinettant
Mi avril vous repiquez vos plants
Mi mai vous repiquez vos plantes tropicales, après les saints de glace.
C'C'est souvent plus la terre que la variété qui fait le goût ,donc le plant du commerce peut aller.
Sinon la noire de Crimée en tomate est plutot bonne,la harzenfeuer aussi.
Si votre terrain est trop humide ,cultivez sur billon ,c'est radical .
Et protegez avec du voile de forçage, ça aide .
Vos semis directs furent ravagés par les limaces la nuit .
Pas besoin de s' epuiser à faire tout mais faire bien
- magnolia75
- Maitre des bosquets
- Messages : 6736
- Inscription : ven. 03 nov. 2017 14:40
- Région : Bourgogne
Re: Besoin d'aide pour planifier le potager - débutant
Bonsoir
Pas mal de planifier déjà ....
Mais pour débuter, faire les légumes qu'on aime et surtout
semer et planter au bon moment
Faire attention à l'ombre portée des arbres fruitiers.
Prévoir les places au soleil pour les tomates et un abri amovible s'il pleut
Les semis de salades de printemps peuvent être fait à l'intérieur mais dans
une pièce fraîche. Et repiquées dans le potager
Semis des blettes en Mars à repiquer en avril
Semis tomates en Mars.
Courgettes, concombres et courges en avril.
Si on sème trop tôt, elles ont du mal à attendre à l'intérieur
Ce qui important c'est de vous faire plaisir ... les quantités seront plus importantes
plus tard.
Pas mal de planifier déjà ....
Mais pour débuter, faire les légumes qu'on aime et surtout
semer et planter au bon moment
Faire attention à l'ombre portée des arbres fruitiers.
Prévoir les places au soleil pour les tomates et un abri amovible s'il pleut
Les semis de salades de printemps peuvent être fait à l'intérieur mais dans
une pièce fraîche. Et repiquées dans le potager
Semis des blettes en Mars à repiquer en avril
Semis tomates en Mars.
Courgettes, concombres et courges en avril.
Si on sème trop tôt, elles ont du mal à attendre à l'intérieur
Ce qui important c'est de vous faire plaisir ... les quantités seront plus importantes
plus tard.
Re: Besoin d'aide pour planifier le potager - débutant
Merci pour les réponses !
Oui, l'idée c'est bien de se faire plaisir. Si c'est pour planter du chou, je vais remettre de la pelouse
Le souci c'est que je ne connais pas forcément les variétés, gustativement déjà, et si elles marcheront bien dans mon jardin.
Presque tout est en plein soleil, le mirabellier est encore petit (3 ans).
Mon voisin fait des tomates, des courgettes et des haricots principalement, donc ça au moins je sais que ça marche.
Oui, l'idée c'est bien de se faire plaisir. Si c'est pour planter du chou, je vais remettre de la pelouse
Le souci c'est que je ne connais pas forcément les variétés, gustativement déjà, et si elles marcheront bien dans mon jardin.
Presque tout est en plein soleil, le mirabellier est encore petit (3 ans).
Mon voisin fait des tomates, des courgettes et des haricots principalement, donc ça au moins je sais que ça marche.
- magnolia75
- Maitre des bosquets
- Messages : 6736
- Inscription : ven. 03 nov. 2017 14:40
- Région : Bourgogne
Re: Besoin d'aide pour planifier le potager - débutant
Bonsoir
Dans les rubriques légumes ou tomates: plein de commentaires sur les variétés, les
succès et les ratages des membres de ce forum
Un petit tour donnera des idées. Mais les goûts et les couleurs

Dans les rubriques légumes ou tomates: plein de commentaires sur les variétés, les
succès et les ratages des membres de ce forum
Un petit tour donnera des idées. Mais les goûts et les couleurs
-
Nicole37n
- Prince du jardin
- Messages : 10178
- Inscription : ven. 13 avr. 2007 22:59
- Région : Poitou Charentes
- Localisation : Deux-sèvres
Re: Besoin d'aide pour planifier le potager - débutant
Bonsoir,
Pour les courgettes, prendre des "non coureuses", c'est plus gérable.
Pour les courgettes, prendre des "non coureuses", c'est plus gérable.
Nicole
- aloune
- Maitre des bosquets
- Messages : 5679
- Inscription : mar. 14 avr. 2009 12:43
- Région : Limousin
- Localisation : Dordogne
Re: Besoin d'aide pour planifier le potager - débutant
Pour les courgettes, la meilleure, qui est aussi la plus productive, et qui en plus fournit aussi d'excellentes courges c'est la courgette trompette, Tromba d'Albenga (coureuse).
Légumes "faciles" selon moi: salade à couper ou mesclun, fèves, pommes de terre, courgettes, courges, blettes, navets, radis, haricots, épinards, et tomates aussi (du moins en général et suivant exposition et microclimat, l'année dernière-mauvaise pour beaucoup).
Parmi les choux, le plus facile selon moi est le brocoli, qui , même "raté" donnera des petits bouquets en abondance.
Légumes "faciles" selon moi: salade à couper ou mesclun, fèves, pommes de terre, courgettes, courges, blettes, navets, radis, haricots, épinards, et tomates aussi (du moins en général et suivant exposition et microclimat, l'année dernière-mauvaise pour beaucoup).
Parmi les choux, le plus facile selon moi est le brocoli, qui , même "raté" donnera des petits bouquets en abondance.
Mes petit et grand potagers 2018: viewtopic.php?f=65&t=189376
Mes listes de recherche et d'échange pour un potager nourricier: viewtopic.php?f=4&t=185758
Mes listes de recherche et d'échange pour un potager nourricier: viewtopic.php?f=4&t=185758
- sibex
- Grossiste en parlotte
- Messages : 4703
- Inscription : ven. 06 févr. 2004 20:59
- Région : Centre
- Localisation : beaugency pres de Chambord
Re: Besoin d'aide pour planifier le potager - débutant
bonjouraloune a écrit : sam. 29 janv. 2022 2:44 Pour les courgettes, la meilleure, qui est aussi la plus productive, et qui en plus fournit aussi d'excellentes courges c'est la courgette trompette, Tromba d'Albenga (coureuse).
Légumes "faciles" selon moi: salade à couper ou mesclun, fèves, pommes de terre, courgettes, courges, blettes, navets, radis, haricots, épinards, et tomates aussi (du moins en général et suivant exposition et microclimat, l'année dernière-mauvaise pour beaucoup).
Parmi les choux, le plus facile selon moi est le brocoli, qui , même "raté" donnera des petits bouquets en abondance.
l'albenga est une mochata et non une courgette , elle peut se consommer jeune mais c'est dommage
http://monpotagerbio.over-blog.com/
L'intelligence c'est la faculté de s'adapter au changement.
Stephen Hawking
L'intelligence c'est la faculté de s'adapter au changement.
Stephen Hawking
- aloune
- Maitre des bosquets
- Messages : 5679
- Inscription : mar. 14 avr. 2009 12:43
- Région : Limousin
- Localisation : Dordogne
Re: Besoin d'aide pour planifier le potager - débutant
essaie la en courgette, et tu verras que c'est loin d'être dommage! c'est merveilleux
Mes petit et grand potagers 2018: viewtopic.php?f=65&t=189376
Mes listes de recherche et d'échange pour un potager nourricier: viewtopic.php?f=4&t=185758
Mes listes de recherche et d'échange pour un potager nourricier: viewtopic.php?f=4&t=185758
Re: Besoin d'aide pour planifier le potager - débutant
Super, merci, je vais essayer 
- safir
- Bourgeon de bavard
- Messages : 228
- Inscription : mar. 15 mars 2005 13:57
- Localisation : Val d'Oise (région parisienne)
Re: Besoin d'aide pour planifier le potager - débutant
Bonjour,
J'ajouterai les radis et les fraises
Un des avantages de la culture de la fève est qu'elle fixe l'azote de l'air dans le sol ( couper les tiges sans enveler les racines du sol et s'en servir de paillage ) et comme les récoltes se font vers juin, cela libère la place pour d'autres cultures.
J'ajouterai les radis et les fraises
Un des avantages de la culture de la fève est qu'elle fixe l'azote de l'air dans le sol ( couper les tiges sans enveler les racines du sol et s'en servir de paillage ) et comme les récoltes se font vers juin, cela libère la place pour d'autres cultures.
Safir
Re: Besoin d'aide pour planifier le potager - débutant
Bonjour , alors je ne suis pas trop loin de chez toi (ORLY ), donc je vais pouvoir te donner quelques indications
pour les courges , il existe plusieurs familles , on peux en faire une de chaque famille et récupérer les graines pour l année suivante sans craintes de mélanges .faire deux d une même famille , il vaudras mieux acheter les graines)
les familles sont (Cucurbita moschata ,cucurbita pepo et cucurbita maxima)
1 Cucurbita Pepo , c est la "bete "courgette , toute simple
pour les courgettes , la mieux c est la courgette verte non coureuse des maraichers j ai aussi essayer la courgette Cassiopé HF1 , les deux avec de bons resultats .normalement la cassiopé est moins sensible aux maladies et est plus productive .EN PRATIQUE , la seule vrai différence que j ai trouvé c est que les grosse courgettes , celle de plus de 25cm reste mangeable et ne durcisse pas .(on récolte les courgettes quand elles font entre 15 et 25 cm)
Au final je fais la courgette verte des maraicher , en fin de saison (31 aout ) je laisse une courgette pousser sur chaque pied pour recolter les graines (en octobre , courgette dure ) et ressemer l année suivante.On ne peut pas faire ça avec une f1
j ai aussi essayer la courgette d alger , un peu plus résistante a la sécheresse , mais on n'as pas ce genre de soucis en IDF
2 Curcubita Moschata , c est par exemple la courge longue de Nice , ou la trompette d albenga , je fais les deux avec succès (et du coup j'achete les graines)
la courge d albenga te fait une courge circulaire de grand diamètre et je ne sais pas comment font les méridionaux pour stocker ça facilement.........
le gros intérêt de ces courges , c est leur conservation longue 6 a 9 mois sans soucis , et leur productivité ,en soupe pour l hiver ,ou légume voir en gateau
3-Cucurbita Maxima , ce sont les citrouilles , ou potimarron grosse ou petites
perso je fait le red Kuri et je recupere les graines
Note: je recupére systématiquement les graines des courges , j en garde un peu pour ressemer , le reste je les consommes soit grillée soit mixé dans la pâte a pain ou en gâteau
les tomates
alors la c est un vaste sujet(1800 variétés) a lui tout seul et je vais te faire une réponse de Parisien : La liberté c est l obligation de choisir
aussi : je n ais jamais vraiment réussi a faire de tomate "en plein champs" , c est tardif (20aout ) et la maladie tue les pieds trés vite (3 septembre).Tout a changé quand j ai acheté une serre (pas cher10m2 puis une serre sérieuse de 16 m2).La je n ai JAMAIS eu de maladie , j ai des tomates dés juillet et jusqu en octobre)
en pratiques , raisonne en taille de fruits et précocité(la précocite varie de 65 jours aprés le semis a 180 jours), je te dirais de te limiter a deux /3 tailles de fruits pour commencer et aux plus précoces celle entre 65 jours et 100jours)
-une tomate cerise La bete cerise , mais il y a plein de variété (je n ai pas aimé celle en forme de poire)
-une tomate de taille moyenne la tigerella marche bien chez moi c est une petite / moyenne et précoce)
-une tomate plaisir ( genre noir de crimée , ou une rose de berne , ou la tomate savignac , ou la tomate des andes, le choix et vaste...)
(démerde toi...)
Les salades , en fonction de tes gouts , fait une précoce résistante au froid Et ensuite une qui résiste a la chaleur sans trop monter en graine
perso une batavia précoce en mai , faire des semis tout les 15 jours /3 semaines
Les poivrons marche bien chez moi , mais il faut commencer tôts les semis 'en janvier), et il faut les faire en tunnel ou serre sinon c est trop long
Les concombres marche très bien , un libanais ou un vert long anglais perso je fais un "tante alice" complétement ésotérique.Pas de difficulté majeur.
Les melons , j essaye mais je n y arrive pas encore bien .on manque de soleil .Le "petit gris de rennes" est celui qui marche le mieux
Ail , echalottes et oignon marche bien , mais je plante tout en fevrier /mars , l hiver est trop humide , et je couvre avec un tunnel plastique
je ne fait que ail et echalottes .( question , de place mais aussi de prix les oignons ne sont pas assez cher pour justifier la place au potager)
les legumes racine ne marche pas trés bien dans notre terre argileuse MAIS il existe des solutions.....
le plus simple c est de faire un carré potager , un de 30cm de haut , et de le remplir de terre vegetale , tonte et du compost (tu peux te fire livrer en BigBag de 1m3 , le prix n est pas excessif)
la aussi , je te déconseille les carottes vu le prix en supermarché et te dirais de te concentrer sur des légumes racine plaisir ou cher .perso je fais Panais , betterave et un truc que j adore mais que j ai du mal a reussir , le celeri-rave)
DANS TOUT LES CAS , tu vas te battre contre les limaces , nos sois disant "amies" , ces perverses de limace a la noix....
en pratique je seme tout en godet au chaud , et je repique une fois que la plante atteint une belle taille...mais cela ne suffit pas ....
j ai acheté des grand saladier en verre (4€ pieces ) et tout ce qui est concombre , courge et courgette ,salade , c est saladier ET ferramol (anti limace)
Bienvenu au club
pour les graines , je trouve la ferme de sainte marthe un peu cher regarde du coté de "semailles" , "graine del pais" pour les Artisans Semancier , Agrosemens pour un semencier agricole rigoureux , et mon semencier généraliste préféré c est "la bonne graine"
pour les courges , il existe plusieurs familles , on peux en faire une de chaque famille et récupérer les graines pour l année suivante sans craintes de mélanges .faire deux d une même famille , il vaudras mieux acheter les graines)
les familles sont (Cucurbita moschata ,cucurbita pepo et cucurbita maxima)
1 Cucurbita Pepo , c est la "bete "courgette , toute simple
pour les courgettes , la mieux c est la courgette verte non coureuse des maraichers j ai aussi essayer la courgette Cassiopé HF1 , les deux avec de bons resultats .normalement la cassiopé est moins sensible aux maladies et est plus productive .EN PRATIQUE , la seule vrai différence que j ai trouvé c est que les grosse courgettes , celle de plus de 25cm reste mangeable et ne durcisse pas .(on récolte les courgettes quand elles font entre 15 et 25 cm)
Au final je fais la courgette verte des maraicher , en fin de saison (31 aout ) je laisse une courgette pousser sur chaque pied pour recolter les graines (en octobre , courgette dure ) et ressemer l année suivante.On ne peut pas faire ça avec une f1
j ai aussi essayer la courgette d alger , un peu plus résistante a la sécheresse , mais on n'as pas ce genre de soucis en IDF
2 Curcubita Moschata , c est par exemple la courge longue de Nice , ou la trompette d albenga , je fais les deux avec succès (et du coup j'achete les graines)
la courge d albenga te fait une courge circulaire de grand diamètre et je ne sais pas comment font les méridionaux pour stocker ça facilement.........
le gros intérêt de ces courges , c est leur conservation longue 6 a 9 mois sans soucis , et leur productivité ,en soupe pour l hiver ,ou légume voir en gateau
3-Cucurbita Maxima , ce sont les citrouilles , ou potimarron grosse ou petites
perso je fait le red Kuri et je recupere les graines
Note: je recupére systématiquement les graines des courges , j en garde un peu pour ressemer , le reste je les consommes soit grillée soit mixé dans la pâte a pain ou en gâteau
les tomates
alors la c est un vaste sujet(1800 variétés) a lui tout seul et je vais te faire une réponse de Parisien : La liberté c est l obligation de choisir
aussi : je n ais jamais vraiment réussi a faire de tomate "en plein champs" , c est tardif (20aout ) et la maladie tue les pieds trés vite (3 septembre).Tout a changé quand j ai acheté une serre (pas cher10m2 puis une serre sérieuse de 16 m2).La je n ai JAMAIS eu de maladie , j ai des tomates dés juillet et jusqu en octobre)
en pratiques , raisonne en taille de fruits et précocité(la précocite varie de 65 jours aprés le semis a 180 jours), je te dirais de te limiter a deux /3 tailles de fruits pour commencer et aux plus précoces celle entre 65 jours et 100jours)
-une tomate cerise La bete cerise , mais il y a plein de variété (je n ai pas aimé celle en forme de poire)
-une tomate de taille moyenne la tigerella marche bien chez moi c est une petite / moyenne et précoce)
-une tomate plaisir ( genre noir de crimée , ou une rose de berne , ou la tomate savignac , ou la tomate des andes, le choix et vaste...)
(démerde toi...)
Les salades , en fonction de tes gouts , fait une précoce résistante au froid Et ensuite une qui résiste a la chaleur sans trop monter en graine
perso une batavia précoce en mai , faire des semis tout les 15 jours /3 semaines
Les poivrons marche bien chez moi , mais il faut commencer tôts les semis 'en janvier), et il faut les faire en tunnel ou serre sinon c est trop long
Les concombres marche très bien , un libanais ou un vert long anglais perso je fais un "tante alice" complétement ésotérique.Pas de difficulté majeur.
Les melons , j essaye mais je n y arrive pas encore bien .on manque de soleil .Le "petit gris de rennes" est celui qui marche le mieux
Ail , echalottes et oignon marche bien , mais je plante tout en fevrier /mars , l hiver est trop humide , et je couvre avec un tunnel plastique
je ne fait que ail et echalottes .( question , de place mais aussi de prix les oignons ne sont pas assez cher pour justifier la place au potager)
les legumes racine ne marche pas trés bien dans notre terre argileuse MAIS il existe des solutions.....
le plus simple c est de faire un carré potager , un de 30cm de haut , et de le remplir de terre vegetale , tonte et du compost (tu peux te fire livrer en BigBag de 1m3 , le prix n est pas excessif)
la aussi , je te déconseille les carottes vu le prix en supermarché et te dirais de te concentrer sur des légumes racine plaisir ou cher .perso je fais Panais , betterave et un truc que j adore mais que j ai du mal a reussir , le celeri-rave)
DANS TOUT LES CAS , tu vas te battre contre les limaces , nos sois disant "amies" , ces perverses de limace a la noix....
en pratique je seme tout en godet au chaud , et je repique une fois que la plante atteint une belle taille...mais cela ne suffit pas ....
j ai acheté des grand saladier en verre (4€ pieces ) et tout ce qui est concombre , courge et courgette ,salade , c est saladier ET ferramol (anti limace)
Bienvenu au club
pour les graines , je trouve la ferme de sainte marthe un peu cher regarde du coté de "semailles" , "graine del pais" pour les Artisans Semancier , Agrosemens pour un semencier agricole rigoureux , et mon semencier généraliste préféré c est "la bonne graine"
